Bauernhaus mit großer Scheune und schönem Grundstück in Merzig OT
-
Das 1911 erbaute Anwesen besteht aus dem ca. 190 qm großen Wohnhaus und der ca. 16 x 17 m großen Scheune, die bisher als Garage und Werkstatt genutzt wurde. Beide Gebäude befinden sich auf einem über 1600 m² großen Grundstück, zu dem ein Nutzgarten und eine Streuobstwiese zählen. Die meisten Modernisierungen am Haus wurden etwa um 1978 vorgenommen. Zu dieser Zeit wurden auch eine Küchenerweiterung und eine Terrasse angebaut.
Etwa um 2010 wurden die Dächer sowohl das Haupthauses als auch der Scheune, inklusive großer Teile des Dachstuhls, erneuert.
In vielen anderen Bereichen (z.B. Böden, Heizung, Wände etc.) besteht noch Renovierungs- bzw. Sanierungsbedarf. Die verkehrsgünstige Lage und das große Platzangebot machen das Haus zum idealen Domizil für Heimwerker, Tierhalter, Sammler, Handwerksbetriebe und jeden, der viele Zimmer, die geräumige Scheune und den großen Garten zu nutzen weiß. -
Flächen
- Wohnfläche: 185 m²
- Grundstücksfläche: 1.647 m²
- Nutzfläche: 250 m²
- Wohneinheiten: 1
- Zimmer insgesamt: 8
- Schlafzimmer: 6
- Badezimmer: 1
- Etagen: 2
- Stellplätze: 2
- Stellplatzart: Freiplatz
- Außenstellplätze: 1
- Terrassen: 1
Zustand & Erschließung
- Baujahr: 1911
- Zustand: renovierungsbedürftig
- Keller: voll unterkellert
Sonstiges
Wir bitten um Verständnis dafür, dass wir detaillierte Informationen zu unseren Objekten nur erteilen, wenn Sie in Ihrer E-Mail-Anfrage Ihre vollständige Adresse und Ihre Telefonnummer, unter der wir Sie tagsüber erreichen können, angeben. Um unnötige Rückfragen zu vermeiden, füllen Sie das Kontaktformular bitte vollständig aus. Nur so können wir auf Ihre Anfrage schnell reagieren. Alle qm-Angaben sind ca.-Angaben. Ein genaues Aufmaß ist nicht erfolgt.- Immobilie ist verfügbar ab: sofort
-
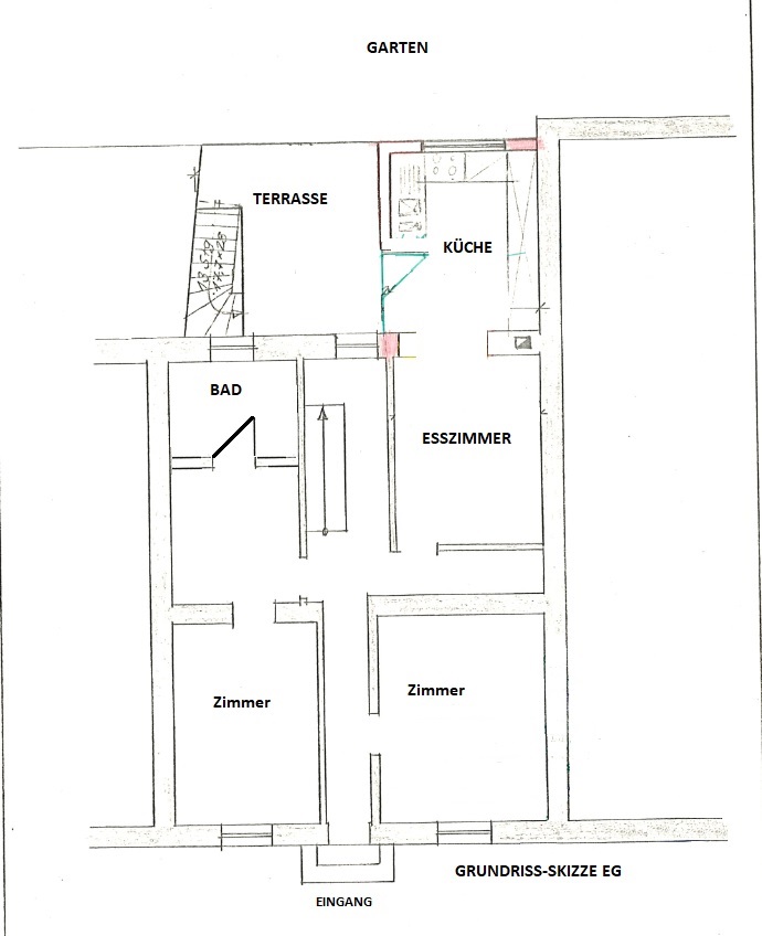
Aufteilung:
KG: Keller
EG: Flur, Küche, Esszimmer, Terrasse, 3 Zimmer, Bad
OG: 4 Zimmer
DG: Dachboden- Art der Ausstattung: Standard
- Heizungsart: Ofenheizung
- Befeuerung: Öl
- Bodenbelag: Fliesen, Dielen, Estrich
- Badausstattung: Dusche, Fenster
-
- Energieausweis-Art: Bedarf
- Energieausweis gültig bis: 16.11.2035
- Endenergiebedarf: 491,75 kWh/(m²*a)
- Primärenergieträger: Öl
- Energieeffizienzklasse: H
- Baujahr (Energieausweis): 1911
- Energieausweis-Ausstellungsdatum: 17.11.2025
- Energieausweis-Jahrgang: ab Mai 2014
- Energieausweis-Gebäudeart: Wohngebäude
-
Die sympathische Kreisstadt Merzig liegt im Nordsaarland, etwa mittig zwischen Saarbrücken und Trier im landschaftlich reizvollen Saartal. Die Nähe zu Frankreich und Luxemburg sorgt für eine Bereicherung des Kultur- und Dienstleistungsangebots. Viele Franzosen und Luxemburger lassen sich hier nieder oder kommen regelmäßig nach Merzig zum Einkaufen, zum Entspannen im beliebten Wellnessbad oder wegen des umfangreichen kulturellen Angebotes. Die Kreisstadt zählt derzeit über 30.000 Einwohner und ist Sitz der Kreisverwaltung sowie zahlreicher Behörden und Schulen, u.a. auch zweier Gymnasien.
Das Anwesen liegt im Ortsteil Bietzen, südlich der Kernstadt am Westhang des Bietzerberges. Bietzen zeichnet sich durch eine ruhige, überwiegend ländliche Umgebung mit viel ursprünglicher Natur aus. Attraktionen wie die bekannte Bietzener Heilquelle und der Premiumwanderweg Der Bietzerberger werden von Einheimischen und Touristen gleichermaßen geschätzt.
Das ca. 6 km entfernte Stadtzentrum ist sowohl mit öffentlichen Verkehrsmitteln als auch mit dem Auto schnell zu erreichen. Die Anbindung an den Bus- und Bahnverkehr ist gut. Innerhalb von wenigen Minuten erreicht man die Autobahn A8 Luxemburg/Saarbrücken, was den Ort auch für Pendler attraktiv macht. -
- Kaufpreis: 240.000 €
- Käuferprovision: 3.57 %
Grundrisse

























