Top sanierte Altbauwohnung in denkmalgeschützem Anwesen mit großem Balkon und tollem Ausblick
-
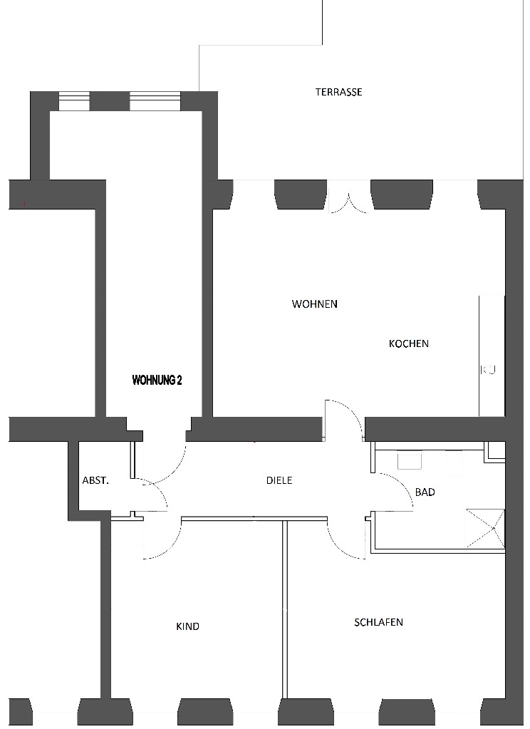
Flächen
- Wohnfläche: 99 m²
- Wohneinheiten: 5
- Zimmer insgesamt: 3
- Schlafzimmer: 2
- Badezimmer: 1
- Etagen: 2
- Etage: 1
- Stellplatzart: Freiplatz
- Außenstellplätze: 1
- Balkone: 1
Zustand & Erschließung
- Baujahr: 1880
- Zustand: modernisiert
- Letzte Modernisierung: 2019
Sonstiges
ENEV : Energieausweis nicht erforderlich da Denkmalschutz-Objekt- Immobilie ist verfügbar ab: 01.03.2026
-
Einbauküche und ein Stellplatz sind inklusive
- Art der Ausstattung: gehoben
- Heizungsart: Zentralheizung
- Befeuerung: Gas
- Bodenbelag: Laminat
- Küche: Einbauküche, Offene Küche
-
- Primärenergieträger: Gas
- Energieausweis-Jahrgang: nicht erforderlich
-
Die Wohnung befindet sich in einer attraktiven Lage mit guter Infrastruktur. Die Anbindung an den öffentlichen Personennahverkehr ist ausgezeichnet. Mehrere Buslinien und der Bahnhof sind fußläufig zu erreichen und gewährleisten eine schnelle Verbindung in die umliegenden Stadtteile und ins Stadtzentrum Saarbrücken. Darüber hinaus sorgt die Nähe zur Autobahn für eine unkomplizierte Erreichbarkeit mit dem Auto und bietet eine zügige Anbindung an das überregionale Verkehrsnetz.
Für den täglichen Bedarf stehen in unmittelbarer Nähe zahlreiche Einkaufsmöglichkeiten zur Verfügung, darunter Supermärkte, Bäckereien und Drogerien. Restaurants und Cafés laden zum Verweilen ein.
Das Rathaus liegt in unmittelbarer Nähe, die Klinik in fußläufiger Entfernung.
Neben mehreren Parks und Grünanlagen, die zu entspannenden Spaziergängen einladen, bieten Sportvereine und Fitnessstudios in der Umgebung zahlreiche Möglichkeiten zur aktiven Freizeitgestaltung.
Kindergärten, Grundschulen und weiterführende Schulen befinden sich in der Nähe und sind gut zu erreichen.
Insgesamt bietet die Lage der Immobilie eine ideale Kombination aus urbanem Leben und ruhiger Wohnatmosphäre, die sowohl für Familien als auch für Berufspendler attraktiv ist.
-
- Kaltmiete: 820 €
- monatl. Betriebs-/Nebenkosten: 130 €
- monatl. Heizkosten: 80 €
- Heizkosten in Warmmiete enthalten: nein
Grundrisse












