Gewerbeimmobilie > Bürohaus
Zu Vermieten
Büro/Praxisräume in super Lage von Ensdorf Parkplätze am Objekt
990 €
360
2005
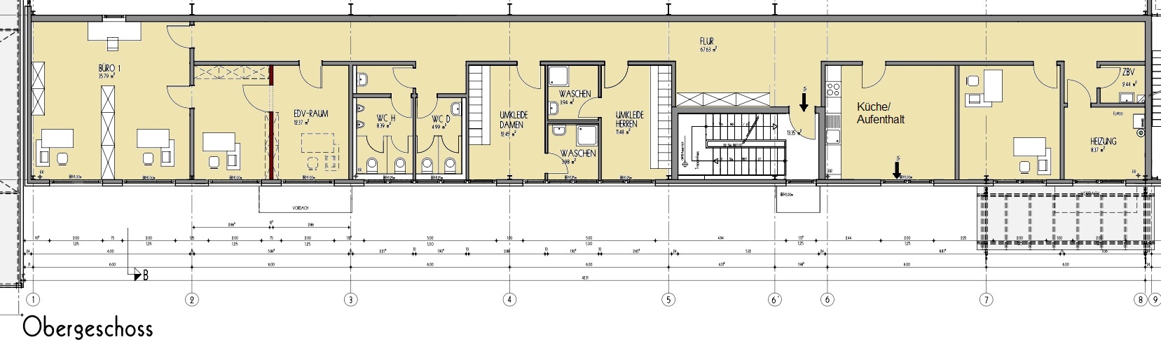
201 m²
-
Bürotrakt in moderner Gewerbehalle mit hervorragender Verkehrsanbindung
-
Flächen
- Nutzfläche: 201 m²
- Bürofläche: 201 m²
- Gesamtfläche: 201 m²
- Etage: 1
- Stellplatzart: Freiplatz
- Außenstellplätze: 2
Zustand & Erschließung
- Baujahr: 2005
- Zustand: nach Vereinbarung
Sonstiges
Alle qm-Angaben sind ca.-Angaben. Wir bieten Ihnen das bezeichnete Objekt und zugleich unsere Dienste als Makler an. Wir sind bei der Weitergabe objektbezogener Daten auf die Informationen der Eigentümer angewiesen und können für deren Richtigkeit keine Gewähr übernehmen. Bei aller Sorgfalt können wir auch nicht dafür garantieren, dass alle Angebotsangaben richtig sind und das Objekt zum Zeitpunkt des Zugangs dieser Offerte noch verfügbar ist.- Immobilie ist verfügbar ab: sofort
-
Büro-/Sanitärräume mit Duschen und Küche/Sozialräume, ca. 202 m².
- Art der Ausstattung: gehoben
- Heizungsart: Zentralheizung
- Befeuerung: Gas
- Küche: Einbauküche
-
- Primärenergieträger: Gas
- Energieausweis-Jahrgang: nicht verfügbar
-
Ensdorf liegt im Südwesten des Saarlandes, nur ca. 5 km entfernt von Saarlouis. Über die A620/A8 sowie B51 und B269 ist Ensdorf hervorragend an das regionale und überregionale Fernstraßen- und Autobahnnetz angeschlossen. Über A8/620 ist man nicht nur schnell in Luxemburg oder Saarbrücken, sondern über die B269 auch in wenigen Minuten in Frankreich. Die Halle liegt zentral im Geschäftskern von Ensdorf an der Ortsdurchfahrt, 2 Min. zur A620.
-
- Kaltmiete: 990 €
- Heizkosten in Warmmiete enthalten: nein
- Kaution: 1.980 €
- Preise zuzüglich Mehrwertsteuer: ja
- Mieterprovision: 1.19 MM
Grundrisse
















